- English
- Hrvatski
Office: Stjepana Radića 27, 22000 Šibenik | Mob: +385(0)98 / 91 93 858 | E-mail: info@dalhome.com | Web: www.dalhome.com
a464
215.673 € (1.624.988 kn)
2
2Real estate type:
Apartments
Location:
Brodarica
Surface:
70.37 m2
Floor:
2.
Condition:
New
Sea distance:
450 m
Sea view:
NO
Parking:
YES
Air condition:
YES
Balcony:
YES
Pool:
NO
Energy classification:
A
First row to the sea:
NO
DESCRIPTION
ŠIBENIK - BRODARICA - NEW BUILDING! Beautiful apartments in an attractive and quiet location, situated near all essential amenities. There are 8 apartments in the building. It will be built from quality and durable materials. Construction is expected to begin in the spring of 2024. and completion in the first half of 2026. The distance to the sea is 450 m.
THE BUYER DOES NOT PAY REAL ESTATE TRANSFER TAX.
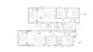
S4 - 70,37 m2. It consists of a hallway, 2 bedrooms, bathroom, toilet, kitchen, dining room, living room, terrace of 13,53 m2 and parking space.
Price: 215.673 EUR.
THE BUYER DOES NOT PAY REAL ESTATE TRANSFER TAX.
S4 - 70,37 m2. It consists of a hallway, 2 bedrooms, bathroom, toilet, kitchen, dining room, living room, terrace of 13,53 m2 and parking space.
Price: 215.673 EUR.
Contact
Dalmat & Hormus d.o.o.
Stjepana Radića 27, 22000 Šibenik
email: info@dalhome.com
web: www.dalhome.com
mob. +385(0)98 / 91 93 858
+385(0)91 / 593 18 77
Dalmat & Hormus d.o.o.
Stjepana Radića 27, 22000 Šibenik
email: info@dalhome.com
web: www.dalhome.com
mob. +385(0)98 / 91 93 858
+385(0)91 / 593 18 77

Single bedroom







