- English
- Hrvatski
Office: Stjepana Radića 27, 22000 Šibenik | Mob: +385(0)98 / 91 93 858 | E-mail: info@dalhome.com | Web: www.dalhome.com
a451
420.720 € (3.169.915 kn)
3
3Tip nekretnine:
Apartmani
Lokacija:
Grebaštica
Površina:
140.24 m2
Kat:
2.
Stanje objekta:
Novogradnja
Udaljenost od mora:
250 m
Pogled na more:
DA
Parking:
DA
Klima:
DA
Balkon:
DA
Bazen:
NE
Energetski certifikat:
A
Prvi red do mora:
NE
OPIS
GREBAŠTICA - NOVOGRADNJA! Luksuzni penthouse s liftom i pogledom na more, u blizini plaže i svih bitnih sadržaja. Smješteni na atraktivnoj i mirnoj lokaciji. U zgradi je ukupno 5 apartmana. Bit će građeni od kvalitetnih i trajnih materijala, a unutrašnjost će biti prozračna i puna svjetla. Svaki apartman ima spremište u podrumu i parkirno mjesto. Udaljenost do mora je 250 m.
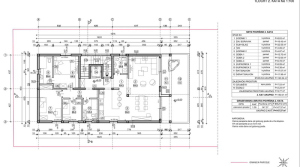
S3 - drugi kat - 140,24 m2. Sastoji se od hodnika, 3 spavaće sobe, 2 kupaonice, wc-a, kuhinje, dnevnog boravka, blagovaonice, spremišta, natkrivenog balkona od 17,07 m2, nenatkrivenog balkona od 11,98 m2, parkirnog mjesta i garaže.
S3 - drugi kat - 140,24 m2. Sastoji se od hodnika, 3 spavaće sobe, 2 kupaonice, wc-a, kuhinje, dnevnog boravka, blagovaonice, spremišta, natkrivenog balkona od 17,07 m2, nenatkrivenog balkona od 11,98 m2, parkirnog mjesta i garaže.
Kontakt
Dalmat & Hormus d.o.o.
Stjepana Radića 27, 22000 Šibenik
email: info@dalhome.com
web: www.dalhome.com
mob. +385(0)98 / 91 93 858
+385(0)91 / 593 18 77
Dalmat & Hormus d.o.o.
Stjepana Radića 27, 22000 Šibenik
email: info@dalhome.com
web: www.dalhome.com
mob. +385(0)98 / 91 93 858
+385(0)91 / 593 18 77

Jednosobni










